DATU DESIGN WORK STUDIO
神奈川県横浜市保土ケ谷区新井町542-17
×
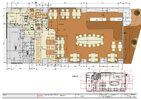
カフェ コレット
店舗概要
- 住 神奈川県相模原市緑区
- 駅 橋本
- 業 カフェ レストラン
- 面 40 坪
- 特 建築
担当者
この事例のコンセプト
施主様のご希望で常連のコーヒー党、アフタヌーンカフェを楽しむお客様、デザートのケータリングをご希望のお客様、ランチタイムやディナーのお客様など幅広い客層に対応できる店内導線とパッケージングを実現したデザインとなっております。
この事例を手掛けた会社の概要
| 社名 | |||
|---|---|---|---|
| 所在地 | 神奈川県横浜市保土ケ谷区新井町542-17 | ||
| 外部リンク | |||
| 代表者 | 和田 直也 | 担当者 | 和田 直也 |
| 業種・業態 | 店舗・オフィス設計施工|インテリア・グラフィック・プロダクトのデザイン | ||
| 坪単価 |
1万円-3万円
デザイン設計金額の目安は最低15万円〜又は施工費の5〜15%で物件規模などによりご相談に応じます。施工費に関しては施主様のご希望に添う形でデザインを進めてまいります。 |
||
| 建築設計 | 可能 | スタッフ数 | 3人 |
このデザイン会社のその他の事例
カフェ・パン屋・ケーキ屋に関連するその他の事例
この会社にお問い合わせ
